Kiểu nhà vườn đẹp
Kiểu 140: Kiểu Nhà Uy Nghi Quý Phái

A. Cảnh quan
- Khu nội thất thanh lịch của căn nhà này được giới thiệu bởi một lối vào hình vòng cung hấp dẫn với cột uy nghi.
- Các cánh cửa kép sẽ mở tới khu tiền sảnh cao 5,776m, mà ở đó một cửa sổ con hình bán nguyệt sẽ làm sáng một cầu thang có lan can song thưa hấp dẫn.
- Về bên phải của khu tiền sảnh, căn phòng khách sẽ cách biệt với phòng ăn sáng sủa bởi các cột gây ấn tượng.
- Căn nhà bếp ốc đảo có một chậu rửa nằm ở góc sáng sủa, một phòng chứa thức ăn và một khu vực dùng điểm tâm được xây kè ra với cảnh nhìn ra khu sân sau.
- Căn phòng sinh hoạt gia đình kế cận có một cánh cửa dẫn tới một khu sân trong phía sau, trong khi đó một quầy rượu và một lò sưởi sẽ làm nổi bật cả khu vực.
- Trên lầu, dãy phòng chính có một phòng tắm riêng với hai phòng để tủ áo, một bồn tắm nước nóng phun và một gương sen riêng.
- Ba phòng ngủ phụ có lối đi đến phòng tắm riêng.
- Các tấm trần trong tất cả các phòng đều cao 2,756m để có thêm không gian.

Kiểu nhà vườn đẹp 142: Kiểu Nhà Khang Trang Bề Thế

A. Cảnh quan
- Khu ngoại thất thanh tú của căn nhà hai tầng này sẽ mở tới một khu nội thất rất rộng.
- Khu tiền sảnh nguy nga hai tầng sẽ phô bày một cầu thang có lan can song thưa rộng hình vòng cung dẫn lên tầng trên và mở đến phòng đọc sách ở phía bên phải và các khu vực sinh hoạt chính thức ở phía bên trái.
- Căn phòng khách rộng rãi sẽ dẫn vào phòng ăn chính thức nhìn ra khu ngoại thất thông qua một cửa sổ kính lắp trực tiếp vào tường xinh xắn.
- Một ốc đảo làm việc rộng lớn và một quầy rượu nằm ở giữa căn nhà bếp rộng và phòng dùng điểm tâm. Một phòng chứa thức ăn rộng, một phòng vệ sinh nữ và một phòng giặt ủi đều nằm kế cận nhau.
- Gần phòng dùng điểm tâm là căn phòng sinh hoạt gia đình rộng lớn thụt vào bên trong, có một tấm trần kiểu vòm cao 3,648m, một lò sưởi ấm cúng và một lối đi ra bên ngoài.
- Tầng trên có một phòng ngủ chính rất hấp dẫn với một tấm trần cao 5,344m và một phòng tắm riêng sang trọng.
- Ba căn phòng ngủ phụ sử dụng chung một phòng tắm lớn thứ hai.

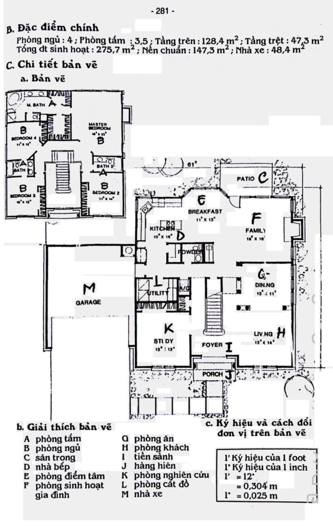
Kiểu 157: Kiểu Nhà Khai Triển Thêm Được

A. Kiểu nhà vườn đẹp 157
- Các cột gạch thanh lịch và một cửa sổ con kiểu vòm hấp dẫn sẽ tô điểm cho căn nhà được thiết kế khéo léo bằng cách chia ra nhiều bậc này. Nhà xe và cản tầng hầm có thể được hoàn tất khi thời gian và tiền bạc cho phép.
- Lối vào có mái che sẽ dẫn tới căn phòng khách rộng rãi, có một tấm trần 3,04m và các khung kính cố định cao. Một cổng vòm với một bồn hoa trang trí sẽ điểm tô một cách hấp dẫn cho căn phòng ăn. Các cửa kính trượt sẽ mở ra khu sân trong phía sau trong khi tắm trần 3,04m thoảng khí sẽ kéo dài đến nhà bép. Căn nhà bếp hình chữ U có một khu vực chậu rửa có cửa sổ rất đẹp và có nhiều khoảng trống quầy.
- Lên một tầng cầu thang, tầng phòng ngủ gồm có ba căn phòng ngủ, một phòng tắm lớn và một tủ chứa đồ vải tiện dụng. Căn phòng ngủ chính được đi vào các cửa kéo thanh lịch và có lối đi riêng ra nhà tắm. Dãy phòng này được tỏa sáng và mở rộng bằng một cửa sổ cánh trượt nâng cao và một tấm trần lí thú vòm lên đến độ cao 3,04m.

Kiểu nhà vườn đẹp 173: Kiểu Nhà Ba Bậc Cát Cứ

A. Cảnh quan
- Với một phòng ngủ trên mỗi tầng trong ba tầng của nó, căn nhà này sẽ tạo ra những góc riêng mỗi người trong gia đình.
- Căn nhà này có đầy đủ ưu thế về tia nắng mặt trời, với các cửa sổ con, các cửa sổ kính trên mái và bốn bộ cửa kính trượt.
- Khu tiền sảnh hai tầng với các bồn hoa ở phía trên sẽ dẫn dắt khách vào khu đại sảnh tụt thấp, khu đại sảnh này có một tấm trần kiểu vòm, một lò sưởi hai mặt và một bức tường cửa sổ với các cửa sổ ở trên đỉnh.
- Căn phòng ăn kiểu vòm có các cánh cửa trượt dẫn tới một sàn lộ thiên rộng.
- Kiểu nhà vườn đẹp 173: Căn nhà bếp kiểu vòm hình chữ U có các cửa sổ kính trên mái và một quầy rượu bán đảo.
- Căn phòng ngủ chính có một phòng để tủ áo và các cánh cửa kính kéo trượt mở tới sàn lộ thiên phía sau. Cách vài bước là một phòng tắm lớn.
- Ban công tầng trên và căn gác xếp sẽ nhìn ra khu đại sảnh và tiền sảnh. Một căn phòng ngủ tách biệt có một mặt lát riêng.
- Điểm nổi bật của căn tầng hầm sáng sủa là căn phòng giải trí rộng lớn với nhiều cửa sổ, một lò củi ấm áp và các cửa trượt mở ra một khu sân trong rộng lớn.

Kiểu 180: Kiểu Nhà Mang Nét Kiến Trúc Tudor

A. Cảnh quan Kiểu nhà vườn đẹp 180
- Các khu vực rộng rãi và các góc cạnh lí thú về mặt kiến trúc sẽ làm nổi bật kiểu thiết kế kiến trúc triều đại Tudor.
- Lối ra vào cao hai tầng sẽ phô bày một ban công ở tầng hai và một căn phòng khách tràn ngập ánh sáng với một tấm trần 3,5m và một lò sưởi rộng lớn. Căn phòng ăn hấp dẫn cách lối ra vào 5 bậc thang đi lên.
- Các cánh cửa kép sẽ dẫn tới khu vực sinh hoạt gia đình thân mật, bao gồm một căn nhà bếp được thiết kế đầy đủ tiện nghi, một khu vực dùng điểm tâm sáng sủa và một khu vực sinh hoạt gia đình rộng lớn với một lò củi và một quầy rượu.
- Dãy phòng chính ở tầng chính có một phòng tắm nắng sang trọng, một tủ áo lớn và một khu vực trang điểm xinh đẹp. Trên lầu có ba căn phòng ngủ phụ, một phòng tắm lớn và một ban công ở giữa mở tới lối vào phía dưới. Căn nhà xe ba chiếc nằm gọn dưới các căn phòng ăn và phòng sinh hoạt gia đình.

Kiểu nhà vườn đẹp và những biệt thự thực tế đang bán
Bán Biệt Thự Thảo Điền Chính Chủ
150 Tỷ VNDBán Biệt Thự Thảo Điền Chính Chủ: Lựa Chọn Đẳng Cấp cho Cuộc Sống Lý Tưởng Bạn đang tìm kiếm một ngôi nhà biệt lập tại khu vực Thảo Điền, quận 2, TP.HCM? Đừng bỏ lỡ cơ hội sở hữu một căn biệt thự đẹp và đẳng cấp tọa lạc tại khu biệt thự Phú […]
Bán tòa nhà đang cho thuê tại Thảo Điền
100 Tỷ VNDBán tòa nhà đang cho thuê – Nâng cao giá trị đầu tư của bạn Cơ hội đầu tư tuyệt vời cho những nhà đầu tư thông thái! Bán tòa nhà đang cho thuê vị trí góc hai mặt tiền tại đường rộng 12m và 10m, diện tích khuôn viên đất lên tới 240m² (ngang […]
King Crown Village Thảo Điền
130 Tỷ VNDKing Crown Village Thảo Điền – đẳng cấp và sang trọng Biệt thự đẳng cấp tại Nguyễn Văn Hưởng, King Crown Village với 7 căn biệt thự, trong đó 4 căn đã được sử dụng. Biệt thự với nhiều tiềm năng khai thác lý tưởng cho phòng khám cao cấp, spa, hoặc văn phòng đại […]
Biệt thự khu thảo điền quận 2
100 Tỷ VNDhttps://youtu.be/oAfS94SWEoM?si=1eiTt6-CllKGre8x Biệt thự khu Thảo Điền Quận 2 Chào mừng đến với căn biệt thự mới tại khu 215 Nguyễn Văn Hưởng, Thảo Điền, Quận 2. Với diện tích lớn 296m² (ngang 11,8m x 25m) và tổng diện tích sàn sử dụng hơn 500m² với nhiều cây xanh (ban công, sân vườn trước & sau); […]
Biệt thự số 5 đường 43 Thảo Điền
95 Tỷ VNDhttps://youtu.be/7HpK9Qrd5mk?si=kKsJPQ5mE5IGB7iI Biệt thự số 5 đường 43 Thảo Điền Vị trí tuyệt đẹp, nằm khu trung tâm Thảo Điền, nhiều khách Tây dân trí cao sinh sống. Đây là khu dân cư cao cấp, diện tích đất 502m² (ngang 20m x sâu 25m), diện tích sàn 450m², thế đất đẹp vuông vức. Biệt thự phong […]
Biệt thự khu Lan Anh Quận 2 cần bán – 1 căn góc gần sông Sài Gòn Vị trí: Căn góc 2 mặt tiền đường trục chính trong khu compound Vip nhất khu Thủ Thiêm, có bến Du Thuyền, có cổng bảo vệ an ninh 24/7, gần sông Sài Gòn, nhà hàng, tiện ích hồ […]
Bán biệt thự Mystery Quận 2
80 Tỷ VNDBán biệt thự Mystery Quận 2 Đây là khu biệt thự nằm kế bên khu Đảo Kim Cương. Diện tích đất: 280m² (14 x 20)m Diện tích sàn sử dụng: 800m² gồm 2 tầng hầm full đất: phòngchiếu film, hồ jaccuzi, sân khấu sức chứa 60-70 khách, bếp…. Tầng trệt: Phòng khách, hồ bơi, bếp […]
Bán biệt thự Thảo Điền Q2
130 Tỷ VNDBán biệt thự Thảo Điền Q2 Biệt thự mới 100%, nằm trong diện tích khuôn viên đất: 755 m2, diện tích sàn xây dựng 405 m2 Tọa lạc an cư: Nhà ở vị trí mặt tiền đường chính huyết mạch khu compound cao cấp Thảo Điền 1, và đối diện công viên gia chủ tập […]
Bán đất mặt tiền Nguyễn Văn Hưởng
93 Tỷ VNDBÁN ĐẤT MẶT TIỀN NGUYỄN VĂN HƯỞNG Đất hai mặt tiền khu biệt thự Thảo Điền 2, số 159 Nguyễn Văn Hưởng, phường Thảo Điền, Quận 2. và mặt tiền đường nội bộ rộng 12m. Diện tích ngang 310m² (15,5m x sâu 20m) thổ cư toàn bộ, đất nằm gần sông rất mát mẻ, trong […]
ĐẶT LỊCH XEM ĐẤT – BIỆT THỰ THẢO ĐIỀN LIÊN HỆ
Hotline Mr Thọ 0903771500 (Zalo – Viber – Whatsapp)
Email: tho8888@gmail.com
Biệt thự Thảo Điền – Biệt thự Riviera – Biệt thự Sala Đại Quang Minh
Bán đất biệt thự Thảo Điền Quận 2 – Những mẫu nhà biệt thự – Kiểu nhà phong cách Châu Âu – Kiểu nhà vườn đẹp








